Maison à vendre, Thieusies (référence 232655)

Superbe maison de caractère dans un parc de 27 ares 20ca.

Rue Jacquet, 11, 7061 Thieusies

N'hésitez pas à partager, on ne sait jamais, ce bien pourrait aussi intéresser vos amis

Faire Offre à Partir de 500.000 €
Nombre de chambres 7 chambres
Superficie terrain 2.720 m²
Revenu cadastral 1928 €

Description

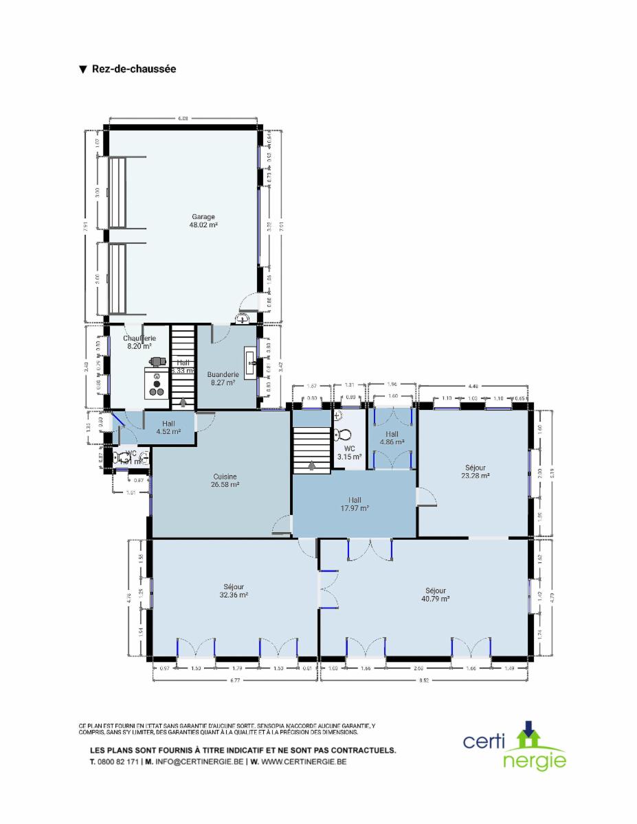
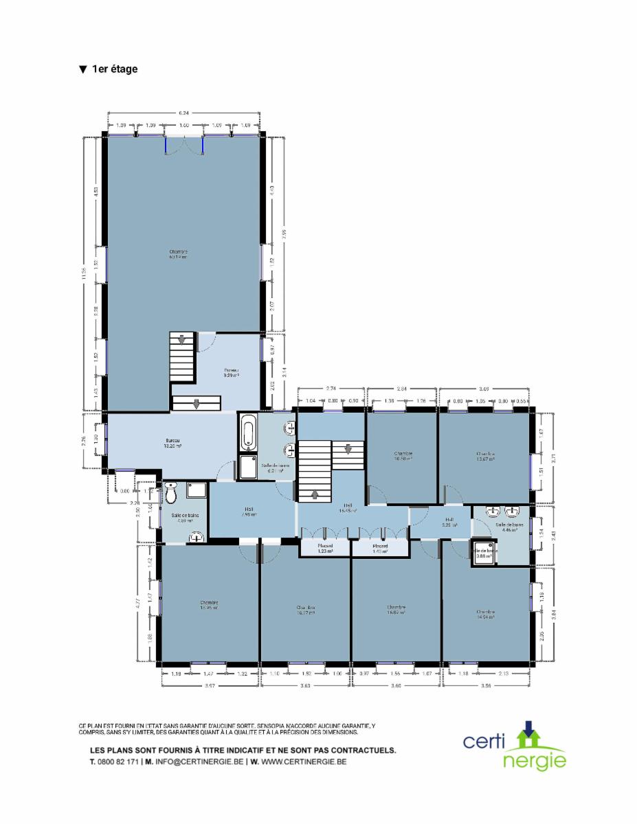
Superbe maison de caractère dans un cadre arboré et en retrait de la voirie sise à Thieusies, rue Jacquet 11 sur et avec terrain de 27 ares 20 centiares composée entre autres d’un hall d’entrée, vaste séjour avec salon et salle à manger, cuisine meublée, buanderie et chaufferie.Le premier étage comporte un hall de nuit desservant 7 chambres dont une grande chambre parentale avec une baie vitrée donnant sur un balcon ainsi que trois pièces d'eau (SDB, SDD). Grand grenier et garage double voitures. Châssis simple et double vitrage en PVC et bois, chauffage central au mazout, volets en bois.Superbe jardin arboré, terrasse et chemin aménagé menant à la maison d’habitation. Le parking actuel de la maison se trouve en partie sur le terrain voisin mis en vente. L'acquéreur du terrain devra à ses frais retirer les pilastres et murs se trouvant sur son terrain.Les acquéreurs des deux lots (Maison et terrain) devront ensuite s'entendre pour aménager la mitoyenneté.Revenu cadastral de 1928€.

Localisation du bien Rue Jacquet, 11, 7061 Thieusies
Classe énergétique
Code unique PEB No. 20220927009288
Consommation spécifique d'énergie primaire 362 kWh/m² par an
Consommation théorique totale d'énergie primaire 180733 kWh par an